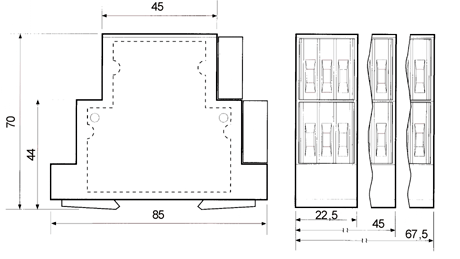
DIMENSIONS